南昌东易日盛第五届家装设计展6月28日开启
——南昌站“三宅•一生”定制私享会
五年一个里程碑,东易日盛已进入南昌五年了!
南昌东易日盛装饰一直用时间在证明着自己,无论是在装修用材还是施工技术,无论是设计功底还是人才储备,我们一直都在用最优质的材料、最前沿的科技、最开放性的设计、最优秀的人才 做为装修后续保障,让消费者没有后顾之忧。
此次南昌东易日盛装饰开启第五届家装设计展,将会开放历年来所做案例,让客户深入了解南昌东易日盛装饰为什么会得到那么多豪宅客户的认可,为什么会有那么多的南昌商业精英将南昌东易日盛做为装修的首选。这一切的谜底,都将在6月28日揭晓!
当天将公布以下几种装修方案
1300平米首富豪宅----万科青山湖会所(新中式)
200平米精英大宅----绿地悦城(新中式)
100平米典雅住宅----香缇溪岸(现代简约)
南昌东易日盛装饰室内设计装修优惠详情如下:
优惠一、交5000元设计定金即得:
(1)《2015中国家装服务标准指导手册》(中国消费者报主编)
(2)精美礼品一份(先到先得,送完为止)
(3)美国进口爱尼克斯水处理设备一台
优惠二、设计费6折
优惠三、工程总造价<8万,赠送13%的主材产品。
8万≤工程总造价<12万,赠送14%的主材产品。
工程总造价≥12万,赠送15%的主材产品。
★主材产品有:意德法家橱柜、酒柜、厅柜、衣柜、浴室柜、护墙板、内门、意德法家壁纸、西班牙进口瓷砖、意大利进口瓷砖
咨询专线:0791-86399992
活动地址:西湖区洪城路987号丽都广场B座5层南昌东易日盛装饰
仅仅花了50万元,就把158平米的三居室装修的美轮美奂!-雅居乐花园装修
刚买了一套新房子,选择了全包的方式来装修。找了熟人介绍的装修公司,忙活了几个月终于装修完了。我家这套雅居乐花园的158平米三居室新房,找熟人全包装修才花费50万,大家觉得值吗?
预算:50万
风格:现代
案例套数:419
在本案设计中,设计师通过感性的思维和理性的手法,将多种现代的元素,巧妙融合,汇成一派。让业主生活在其中,既享受到高品质的细节、个性化的亮点,却又不失居家的温馨、人性化的氛围,体验到高品质家居带来的生活新主张。
客厅是全家活动、娱乐、休闲、团聚、就餐等活动场所,又是接待客人、对外联系交往的社交活动空间。在满足起居室多功能需要的同时,应注意整个起居室的协调统一;各个功能区域的局部美化装饰,应注意服从整体的视觉美感。

走道采用黑与白对比;在材质上,采用地砖与地板对比

设计师通过感性的思维和理性的手法,将多种现代的元素,巧妙融合,汇成一派

本案不是强调奢华塑造,而是通过低调的处理方式,重新诠释了华美的生活定义

客厅以大块面的壁纸及一色地砖衬映出干净利落的空间,深色皮革沙发与电视柜平衡了客厅的空间感。
对于卧室来说,不宜过长或者过大,一个是狭长的空间不好布置,并且容易让人产生孤独感。为了规避这种现象,我们可以将它一分为二,在内部添加个衣帽间或者书房等等。

居家的温馨、人性化的氛围,带来高品质家居带来的生活新主张
餐桌的选择需求注意与空间大小配合,小空间配大餐桌或者大空间配小餐桌都是不合适的,因为购买的实质问题,业主很难把东西拿到现场开展比较,因此,在餐厅装修的时候先测量好所喜好的餐桌尺寸后,拿到现场做比较,可避开过大过小。

餐厅成品地柜配以马赛克镶边的吊柜,与吧台、餐桌椅形成完整的构成关系
厨房合理设计能使我们在使用厨房的时候变得更加轻松,方便。厨房是潮湿易积水的场所,所以表面装饰用材都应选择防水耐水性能优良的材料。

厨房为开放式,意德法家的烤漆橱柜与金属砖完美的搭配,将现代风格的质感展现无遗
玄关的入户鞋柜和置物架是非常实用的。鞋柜的造型比较多,如果选择了底部没有腾空的,那么清洁时就会有点小麻烦。置物架可以摆放在鞋柜上,刚好可以放置一些钥匙、手机等小物件。

玄关服务于业主健身休闲的功能,是承接电梯间与室内的过渡空间
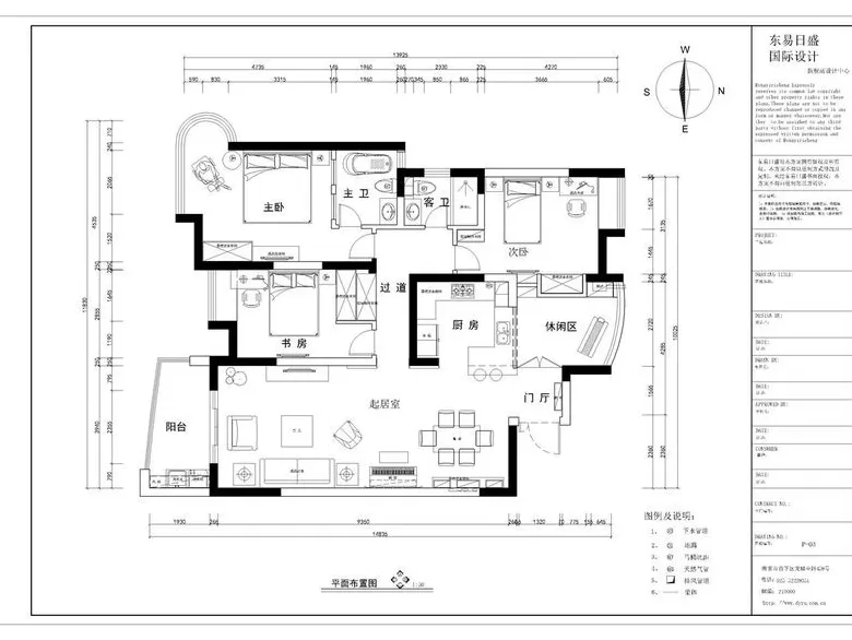
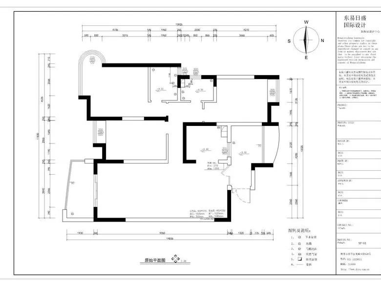
以下就是本套雅居乐花园小区158平米三居室房子的户型图。

现代三居室装修平面布置图,体验高品质家居生活

现代三居室装修原始结构图,体验设计思维的理性
以上就是小编为大家介绍的关于158平米的三居室装修的相关知识了,把房子交给了装修公司,选择全包的方式仅仅用了50万元是非常划算的,希望能够为您今后的装修带去帮助。
相关问答
意德法家橱柜价格求告知-家居装修–手机房天下问答
意德法家橱柜价格求告知橱柜举报共3个回答意德法家整体橱柜定做双饰面板门板厨房石英石台面厨柜3999意德法家整体橱柜定做模压门板厨房厨柜订制配烟机灶...


微信扫一扫打赏
支付宝扫一扫打赏



